Private Market
Roma Sud
Fonte Laurentina - Via Luigi de Marchi, 91 Int 5
Private Market
Roma Sud
RM EUR
Fonte Laurentina - Via Luigi de Marchi, 91 Int 5
Foto
Video
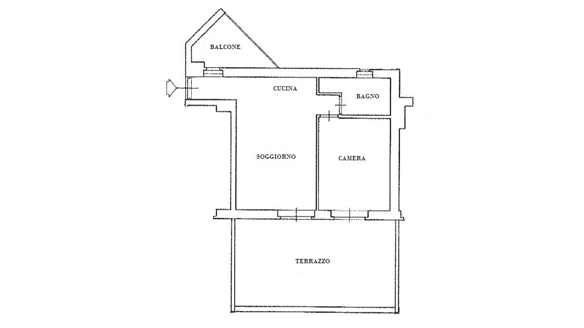
planimetrie
Book
No items found.
No items found.
No items found.
No items found.
No items found.
Emotions
is only available in landscape mode