Private Market
Fuori Roma
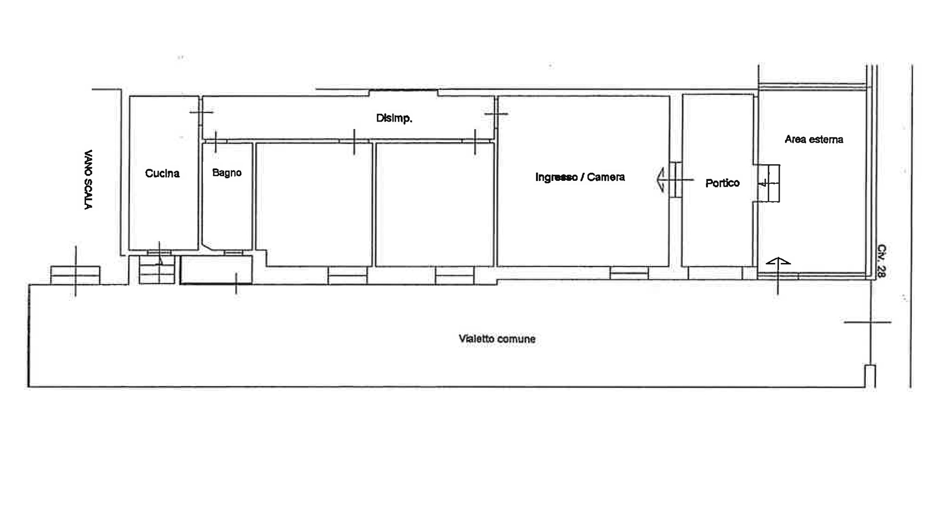
Ladispoli - Via Torino, 24
Private Market
Fuori Roma
RM EUR
Ladispoli - Via Torino, 24
Foto
Video
planimetrie
Book
No items found.
No items found.
No items found.
No items found.
No items found.
Emotions
is only available in landscape mode