Private Market
Roma Sud
Villa Bonelli - Via Emilio Almansi, 82
Private Market
Roma Sud
RM EUR
Villa Bonelli - Via Emilio Almansi, 82
Foto
Video
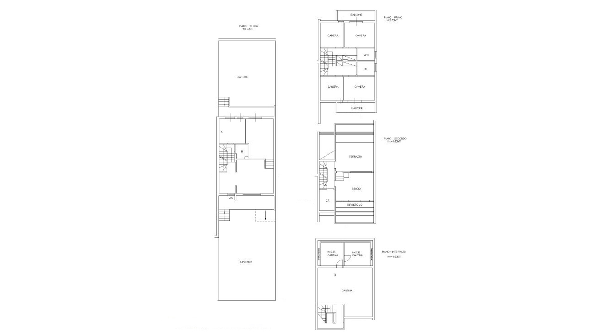
planimetrie
Book
No items found.
No items found.
No items found.
No items found.
No items found.
Emotions
is only available in landscape mode